案例介紹
遼寧省 - 丹東市 - 振興區(qū)
中聯(lián)江景
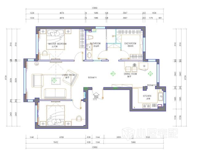
戶(hù)型圖








