案例介紹
河北省 - 唐山市 - 路北區(qū)
恒泰悅季
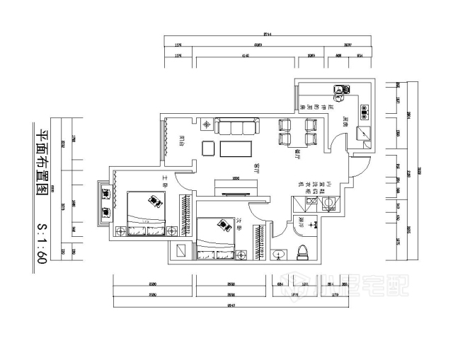
戶型圖

背景墻木地板配灰色墻漆加以裝飾,整體簡潔又不失時尚

側面看木地板前面的吊燈也富有小心機。金屬的造型點綴其中。

餐廳位置不大,簡單的餐桌足以。

臥室采用藍色的背景墻,顏色的搭配上舒適又安逸。

廚房暖色的墻磚搭配白烤漆櫥柜,簡潔輕快

午后的陽光照進廚房,舒服愜意

門廳放置洗衣機和冰箱,多出的空間加以合理利用。空間布局更簡潔

衛(wèi)生間原木色的浴室柜,
免費申請設計
設計師上門服務全程免費,禁止以任何形式收取費用。