案例介紹
內蒙古自治區(qū) - 烏蘭察布市 - 集寧區(qū)
警苑
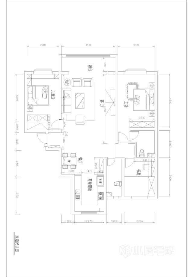
戶型圖

門廳

客廳

客廳

餐廳

臥室

臥室

次臥

衛(wèi)生間

廚房
免費申請設計
設計師上門服務全程免費,禁止以任何形式收取費用。